集成式 BIM 工具,包括 Revit、AutoCAD 和 Civil 3D
基于 Inventor 和 AutoCAD 的专业 CAD/CAM 工具
娱乐内容创作工具,包括 3ds Max 和 Maya
在 BIM 中对系统设计进行建模、分析和迭代,以支持更好的性能和可持续性。
图片来源:BNIM
集成设计
使用 Revit 简化工程设计流程。在施工开始前,在单个模型中协调和沟通设计意图。
分析
在设计过程的早期阶段执行仿真和碰撞检测。为工程驱动的计算使用概念能量分析数据。
文档编制
在完整的建筑信息模型上下文中设计、建模和编制建筑系统,包括建筑和结构构件。
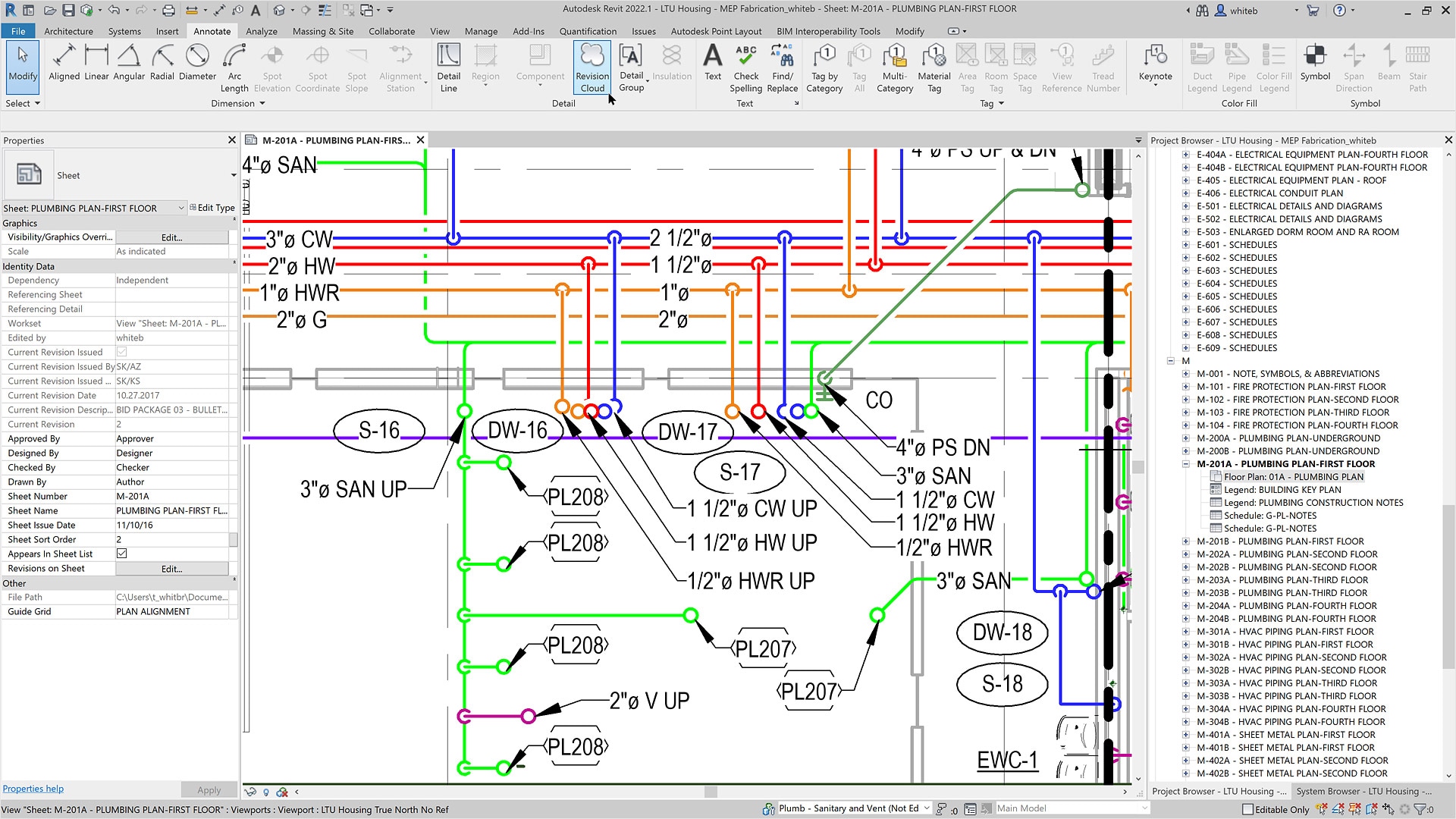
制造
使用能够自动执行制造模型布局的工具构建 MEP 制造模型。准备可实现制造和安装的详细协调的模型。
了解 Revit 如何与其他 Autodesk 软件配合使用。
在 Revit 中创建模型,将其导出为 MAJ 文件,并将其导入 Fabrication CADmep 以便用于施工图和现场准备。
在使用 ITM 构建的 Revit 模型中创建估算数据,然后利用它们提高标书的准确性和竞争力,从而帮助赢得投标。
仅限工程建设软件集
通过 Revit 和 Insight 获得实时反馈以做出明智的设计决策,从而实现更好的建筑性能。
- Jim Tavernelli,KLH 总裁兼首席运营官
- Joseph Cory 博士,Geotectura Studio 建筑师
- Sam Kepner,Kirlin BIM 经理
- Alan Creel,米勒电气公司副总裁