AutoCAD 2026 随附 Plant 3D 工具组合

利用适合工厂设计的行业专业化工具组合,创建并编辑管道和仪表图 (P&ID) 和三维模型,以及提取管道正交和等轴测图。 借助 Plant 3D 工具组合,您可以:

  • 在远程的通用数据环境中安全地协作  

  • 通过上下文相关命令加快并自动执行 P&ID 绘图和三维建模  

  • 直接根据三维模型自动创建管道等轴测图形  


使用 AutoCAD Plant 3D 工具组合设计的工厂中的管道系统模型

Plant 3D 工具组合功能

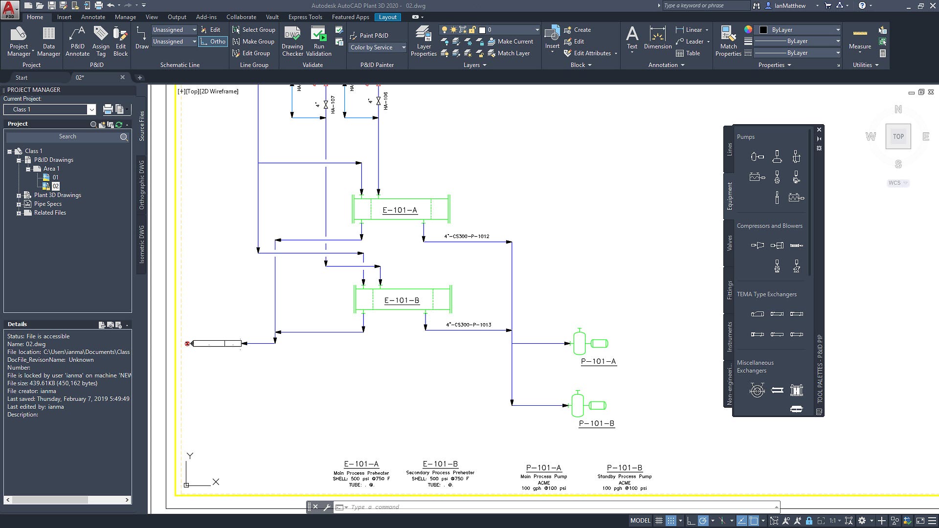
AutoCAD Plant 3D 2026 中的新功能

可视化和映射中的 P&ID 增强功能

特定 P&ID 对话框的可视化已得到改进,以提升用户体验。此外,父类别中的子类别映射也得到了改进,以提高易用性。


协作工作流增强功能

项目功能得到改进,包括共享选择列表、现代项目备份和核查界面,并且能够直接从“项目设置”更新项目名称,从而确保一致性且易于管理。


等级库编辑器重新设计

等级库编辑器现在具有简化的设计,提供增强的等级库和元件库自定义选项。重新设计提供了用户友好的现代样式,同时保留了三个选项卡:“等级库”、“分支表”和“元件库”。


三维建模增强功能

AutoCAD Plant 3D 提供了新的替换菜单选项,用于减少管件和设备管嘴。通过将默认视觉样式调整为“着色”享受优化的性能。设备主体预览和更好的端口名称显示也改善了可视化效果。


连接的支持文件

支持文件现已连接,这意味着 Autodesk Docs 项目中的所有图形和协作者都可以共享一组支持文件。


协作和 P&ID

Plant 3D 设计协作

跨项目团队协作处理工厂设计模型并保持合规性要求,所有这一切都在远程的通用数据环境中完成。


P&ID 快速绘图

使用上下文相关的 AutoCAD 命令使 P&ID 绘图变得更容易。(视频:58 秒)(英文)


行业标准符号库

Plant 3D 工具组合在工具选项板中提供了标准符号库。包括 PIP、ISA、ISO/DIN 和 JIS。


数据验证

根据用户可定义的规则,通过扫描 P&ID 检查其数据一致性,快速识别可能存在的错误。


三维建模

3D 快速工厂建模

使用参数化设备建模、结构钢库和按行业标准管道目录制定的项目特定管道规范,快速创建三维工厂模型。(视频:1 分 26 秒)(英文)


参数化设备样板

使用参数化样板创建和编辑设备,帮助您更快地创建工厂布局。


结构建模

使用包括 AISC、CISC 和 DIN 在内的行业标准钢型材的布局结构、楼梯、梯子和栏杆。


创建项目特定管道规范

自定义管道规范,以满足项目特定的要求。包括符合行业标准的零部件以及自定义零部件。


管道文档

创建和编辑管道正交图形

直接从三维模型提取管道正交图形,并在更新三维模型时更新它们。


自动生成管道等轴测图

直接从三维模型创建行业标准/项目标准管道等轴测图形。


自动化项目特定的报告

定义项目的报告格式,并直接从三维模型自动填充数据。


BIM 模型文档

与其他行业学科的人员合作,为工厂创建 BIM 模型。


工厂中的圆柱管

Plant 3D 工具组合优势

根据这项研究,Plant 3D 工具组合将工作效率提升高达 74%*,大大节省了常规 AutoCAD 流程工厂设计任务的时间。

Plant 3D 工作流

Plant 3D 工具组合 + BIM 360 Design

工厂设计师使用 BIM 360 Design 在远程的通用数据环境中跨项目团队进行协作。 


Plant 3D 工具组合 + Revit + Navisworks + InfraWorks

使用工程建设软件集中的 Plant 3D 进行规格驱动的设计、分析和施工就绪等轴测。


以柔和色调呈现的城市景观的三维图形

Autodesk 工程建设软件集

使用 Plant 3D、Civil 3D、InfraWorks、Revit 和其他 BIM 软件和工具简化工作流。


*免责声明

工作效率数据基于 Autodesk 委托给外部顾问执行的一系列研究。这七项针对工具组合的研究比较了由有经验的 AutoCAD 用户执行常规任务时,普通 AutoCAD 与 AutoCAD 专业化工具组合的表现。与其他所有性能测试类似,测试结果可能会因计算机、操作系统、过滤器、测试地点的网络环境、测试样本的来源不同而有所差异。本次测试样本来源于英国且测试地点位于英国,因此最终结果可能与您所在其他地区进行的测试结果存在差异。产品信息和规格可能随时变化,恕不另行通知。Autodesk“按现状”提供该信息,无意通过本次测试就相关产品及服务提供任何形式的明示或默示质保。